Listing Details
Address: 616 Valmont Street, New Orleans, LA 70115
Listing Type: For Sale
Sold Price: $560,000
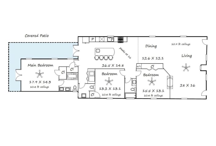
Size: 3BR, 2.5BA
My Role: Listing Agent
Details: Classic cottage in prime Uptown location at an unbelievable price point! The entire property is quintessential New Orleans including architectural details of hardwood floors, tall ceilings, exposed brick and more. The kitchen includes stainless steel appliances and a ton of counter and cabinet space. The floor plan is great for hosting, offers a lot of natural light and inspires great energy. Massive fenced-in yard. Enviably situated steps to the best of bustling Magazine Street and out of the flood zone.


































