Listing Details
Address: 3520 Harvard Avenue, Metairie, LA 70006
Listing Type: Sold!
Price: $397,000
Size: 4BR, 2FB
My Role: Listing Agent
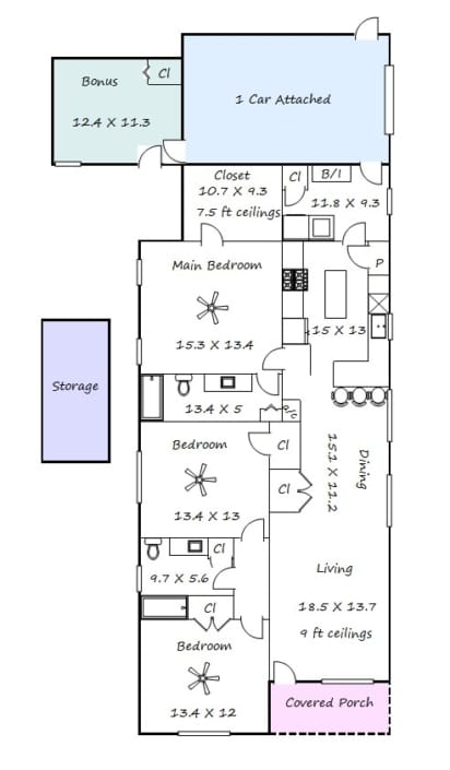
Details: Lovely home for sale in the scorching hot Ponchatrain Gardens neighborhood! The property is in tip-top shape and renovated from top to bottom. The floor plan is excellent for hosting and also offers the ideal home office set up- a private space removed from the rest of the living area. The home also comes with an enviable utility room and a nice big garage. The home sits on a corner lot affording a ton of natural light. Simply put this a wonderful property in a great part of Metairie. This one will go fast!


































